MAP
Photos
Map
Schools

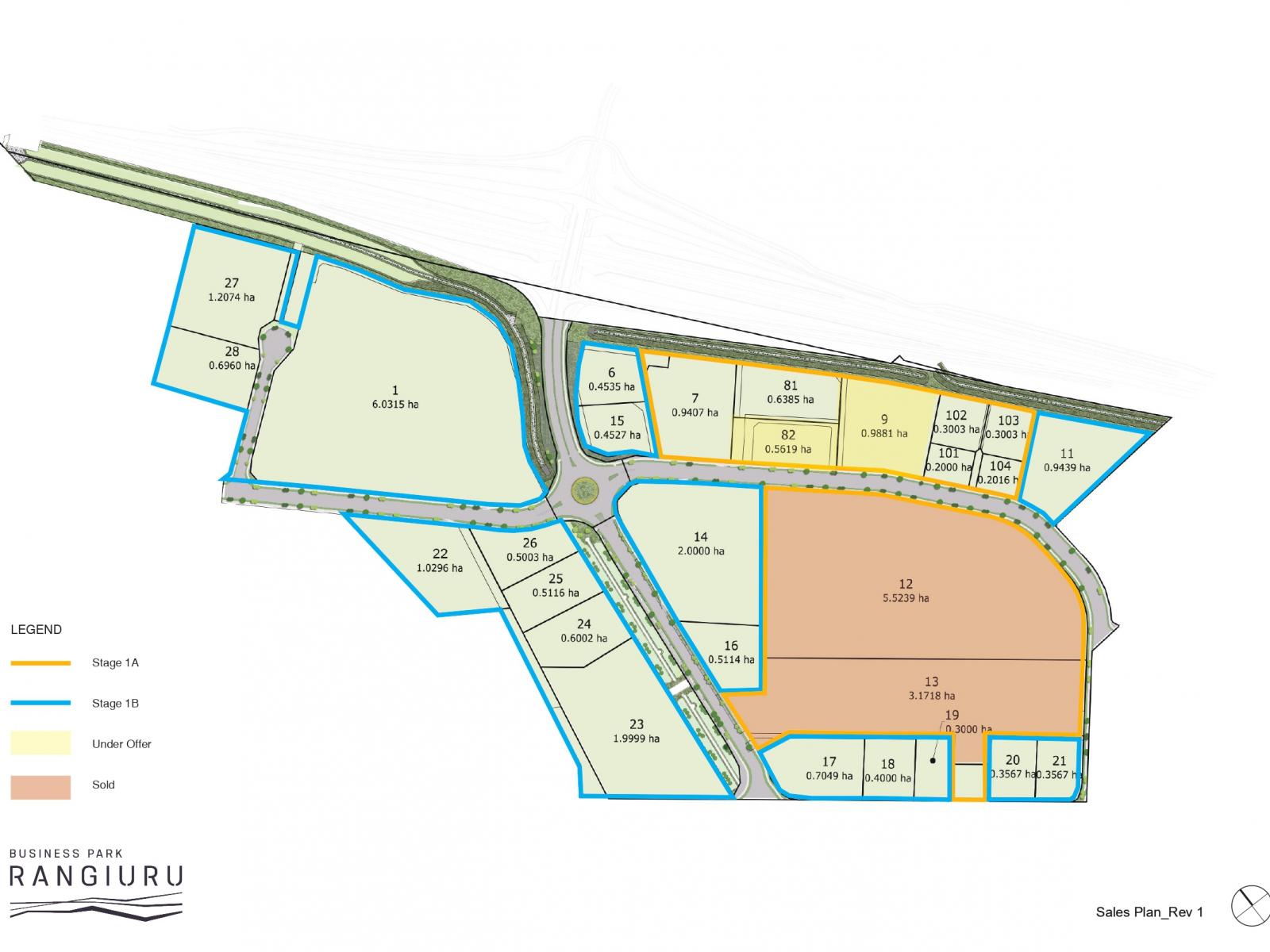
Rangiuru Industrial Land 1.0296 hectares (Lot 22) Rangiuru Business Park Development, Rangiuru

ID TGC214276
$6,177,600 + GST (if any)

Industrial Land 1.0296 hectares (Lot 22) Rangiuru

The Rangiuru Business Park is a major industrial development located near Te Puke in the Bay of Plenty, New Zealand. Spanning 148 hectares across four stages, it is set to become the region's largest consented greenfield industrial zone.

•Total area: 1.0296ha
•Stage 1, covering approximately 14 hectares, is currently selling, with titles expected by late 2025

The development includes significant infrastructure, such as a $60 million motorway interchange connecting the park to State Highway 2, co-funded by Quayside Holdings and the Provincial Growth Fund. The park incorporates sustainable design elements, including a 48-hectare stormwater pond and wetland, and collaborates with local iwi to ensure cultural considerations are met.

A full Information Memorandum is available on request.

Contact the agents for more information.
Features
Land | 1.03 hectares(2.55 Acres)
PRINT ENQUIRE NOW

Colin MacPhee

M  021 0219 1178  P  

Enquire Now










ASAP  0-2 months  3-6 months 
Yes  No 













Privacy Statement




Property Brokers Ltd MREINZ acknowledges and complies with the provisions of the Privacy Act 1993 and its amendments. In particular Property Brokers policy covers the following specific points relevant to this topic and this website:


Any client information you provide to Property Brokers will be used only for the purpose for which it is given and will not be passed on to any third party except in accordance with the law, or with specific consent.


In the main, this will be to facilitate company communication with you in order to better meet your real estate objectives and expectations.


Information provided by you will remain confidential to Property Brokers Real Estate Ltd MREINZ. This particularly applies to your reasons for selling which we regard and treat as a personal and private matter.


Any information divulged by you to any other website linked to the Property Brokers website is given at your discretion alone, and Property Brokers takes no responsibility for any disclosures that might result.


Information provided on this website is copyrighted to Property Brokers and may be accessed, downloaded and used for personal use only. The material must not be modified, copied or reproduced for gain or commercial use without the consent in writing of Property Brokers Real Estate Ltd MREINZ.


 




Google disclaimer


This website uses Google Analytics to help analyse how users use the site.


The tool uses "cookies," which are text files placed on your computer, to collect standard Internet log information and visitor behaviour information in an anonymous form.


The information generated by the cookie about your use of the website (including your IP address) is transmitted to Google. This information is then used to evaluate visitors use of this website and to compile statistical reports on website activity.


We will never (and will not allow any third party to) use the statistical analytics tool to track or to collect any Personally Identifiable Information of visitors to our site. Google will not associate your IP address with any other data held by Google. Neither we nor Google will link, or seek to link, an IP address with the identity of a computer user.


You may refuse the use of cookies by selecting the appropriate settings on your browser, however please note that if you do this you may not be able to use the full functionality of this website.


By using this website, you consent to the processing of data about you by Google in the manner and for the purposes set out above.


This website uses Google AdWords


This website uses the Google AdWords remarketing service to advertise on third party websites (including Google) to previous visitors to our site. It could mean that we advertise to previous visitors who havent completed a task on our site, for example using the contact form to make an enquiry. This could be in the form of an advertisement on the Google search results page, or a site in the Google Display Network. Third-party vendors, including Google, use cookies to serve ads based on someones past visits to the [CLIENT NAME] website. Of course, any data collected will be used in accordance with our own privacy policy and Googles privacy policy.


You can set preferences for how Google advertises to you using the Google Ad Preferences page, and if you want to you can
opt out of interest-based advertising entirely by cookie settings or
permanently using a browser plugin.


Colin MacPhee
Rapid SSL Site Seal
Similar Listings
Industrial Land 9439m2 (Lot 11) Rangiuru Business Park Development
Rangiuru

The Rangiuru Business Park is a major industrial development located near Te Puke in the Bay of Plenty, New Zealand. Spanning 148 hectares across four stages ...

$5,899,375 + GST (if any)
Industrial Land 9881m2 (Lot 9) Rangiuru Business Park Development
Rangiuru

The Rangiuru Business Park is a major industrial development located near Te Puke in the Bay of Plenty, New Zealand. Spanning 148 hectares across four stages ...

$6,422,650 + GST (if any)